Информация по объекту
-
Район
Другой
-
Улица
-
Тип сделки
Продажа
-
Площадь помещения
315 м2
-
Этаж/Этажность
1/1
-
Площадь участка
–
Стоимость услуг
Уточните у агента
ID объекта
45280
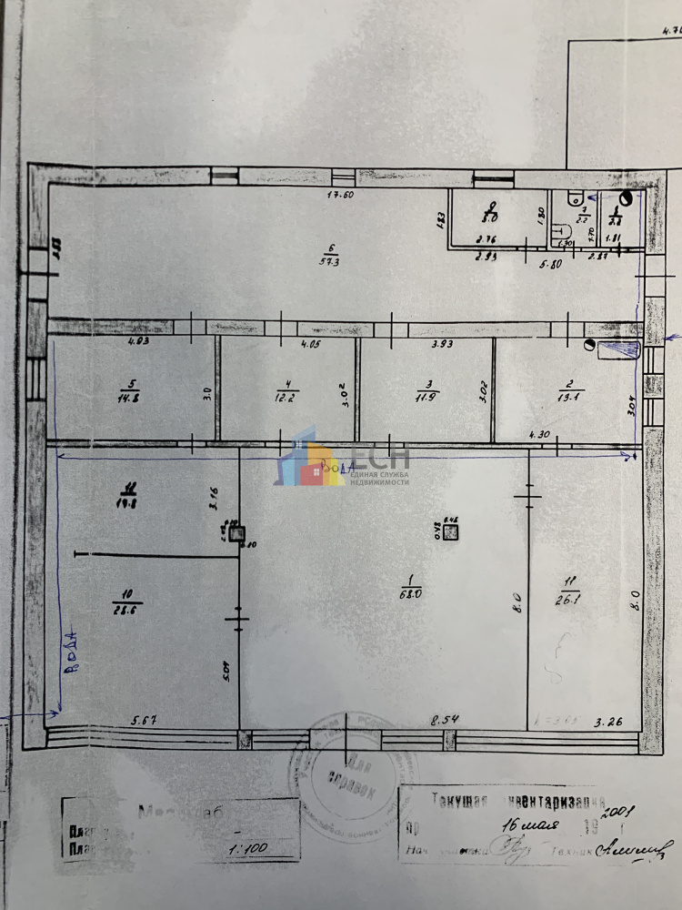
Описание
В продаже торговое помещение по адресу обл. Тульская, г. Белёв, Пролетарская улица, 10. Площадь 315 кв. м. Здание отдельно стоящее, кирпичное. Перекрытие ж/б плиты, есть возможность построить 2 этаж. Кровля метало черепица. Электричество 380 в. газ, вода, канализация. Отопление двухконтурный котёл. В доме туалет, душ, баня. Бывший магазин с оборудованием. Участк 6 соток, общепит, торговля. Помощь в одобрение и получение ипотеки.
Описание
В продаже торговое помещение по адресу обл. Тульская, г. Белёв, Пролетарская улица, 10. Площадь 315 кв. м. Здание отдельно стоящее, кирпичное. Перекрытие ж/б плиты, есть возможность построить 2 этаж. Кровля метало черепица. Электричество 380 в. газ, вода, канализация. Отопление двухконтурный котёл. В доме туалет, душ, баня. Бывший магазин с оборудованием. Участк 6 соток, общепит, торговля. Помощь в одобрение и получение ипотеки.