Описание
Продается современный двухэтажный дом, 163 м², на участке 15 соток
Основные характеристики:
Площадь дома: 163 м²
Участок: 15 соток (отмежеван, межевой план предоставим)
Этажность: 2 этажа
Дом построен с участием крупного московского застройщика
Действует гарантия на дом
Архитектурный проект — в наличии
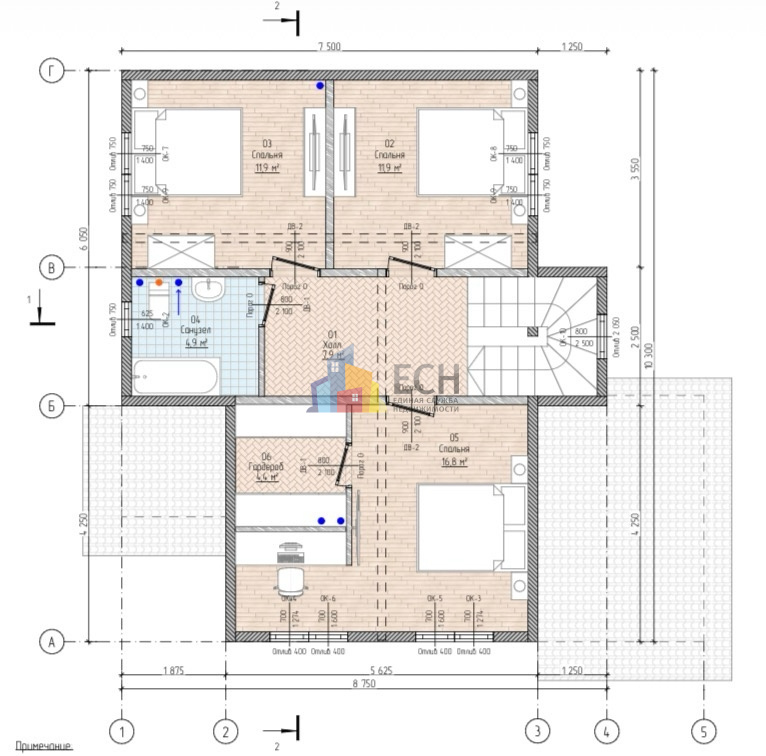
Планировка:
4 просторные спальни
Кухня-гостиная
2 санузла
Бойлерная
Просторная терраса под крышей
Коммуникации:
Электричество подключено
Газ проходит по границе участка
Состояние дома:
Дом готов к финишной внутренней отделке
Внешние стены защищены специальной мембранной пленкой от влаги
Варианты внешней отделки — на ваш вкус (предоставим контакты проверенного подрядчика)
Участок и окружение:
Перед домом предусмотрено место под парковку, навес или гараж
Соседи проживают круглогодично
Хороший круглогодичный подъезд
Асфальтированная дорога до участка
Зимой дороги регулярно и качественно чистят
До города всего 15 минут на автомобиле
В пешей доступности магазин
Рядом есть школы и детские сады
Почему СИП-панели — это отличный выбор:
Высокий класс пожаробезопасности — материалы соответствуют современным стандартам
Экологичность — безопасны для здоровья, не выделяют вредных веществ
Отличная теплоизоляция — дом очень теплый зимой и сохраняет прохладу летом
Прочность и долговечность — выдерживают серьезные нагрузки и служат десятилетиями
Энергоэффективность — сниженные расходы на отопление
Быстрота строительства и качество — технология обеспечивает ровные стены и высокую герметичность
Видео дома изнутри готов предоставить по запросу
Отличный вариант для комфортного круглогодичного проживания!
Звоните — с удовольствием расскажу подробнее и организую просмотр.